

GUIDE PRICE £475,000 - £500,000 • RE/MAX SELECT are delighted to offer for sale this extended semi-detached bungalow close to schools and amenities, including immediate access to Abbey Wood station with Crossrail/Elizabeth Line and Thameslink. This property comprises 3 DOUBLE bedrooms, living room, open-plan kitchen/dining room, ensuite shower room, family bathroom, and additional shower room.
Further benefits include double glazing, gas central heating, 60ft (approx) garden, and off street parking. VIEWING HIGHLY RECOMMENDED.
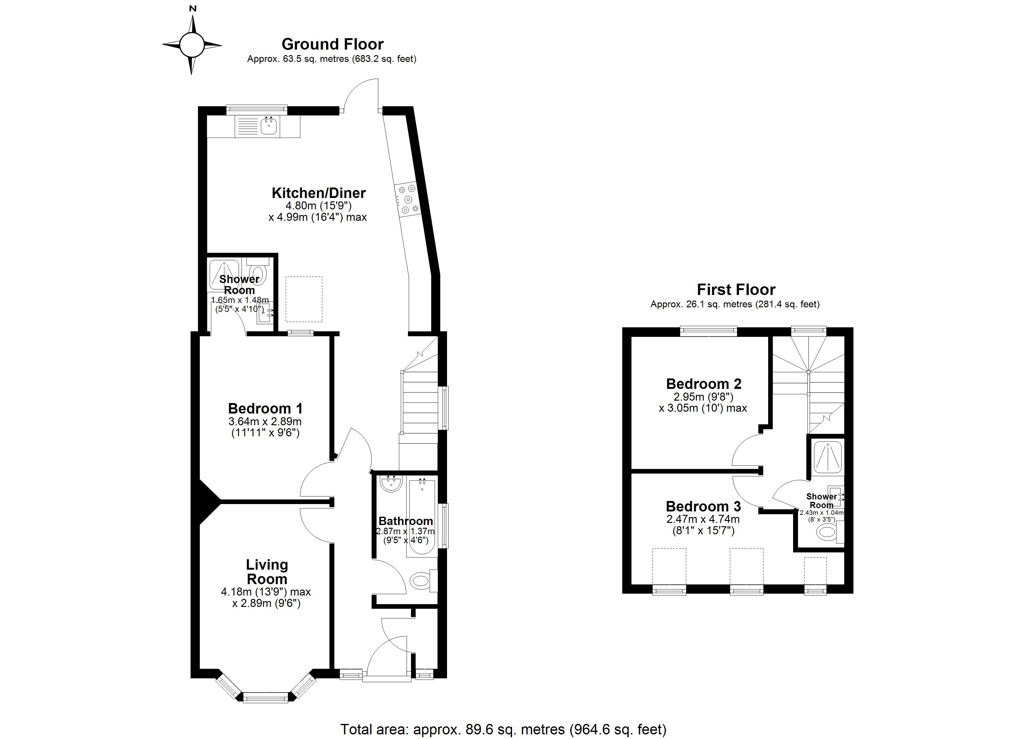
Total Internal Area approx: 946.60 sq ft (89.6 sqm).
Carpeted, radiator, storage cupboard; carpeted stairs leading to first floor.
Carpeted, radiator, double glazed bay window.
Tiled flooring; range of wall and base units with complementary worktops and tiled splashback; island with base units and worktop; fitted gas hob, fitted oven/grill, stainless steel extractor hood, stainless steel sink with mixer tap; space and connections for fridge/freezer; space and connections for washing machine; double glazed windows; door leading to rear garden.
Carpeted, radiator, window; access to ensuite shower room.
Tiled flooring, tiled walls; walk-in shower enclosure with thermostatic shower; vanity unit with wash-hand basin; w/c, heated towel-rail.
Tiled flooring, tiled walls; panelled bath with mixer tap; vanity unit with wash-hand basin; w/c, heated towel-rail, extractor fan, double glazed frosted window.
Carpeted, radiator, double glazed window.
Carpeted, radiator, double glazed Velux windows, eaves storage.
Tiled flooring, tiled walls; walk-in shower enclosure with thermostatic shower; wash-hand basin, w/c, heated towel-rail, double glazed Velux window.
Off street parking for 2 cars.
Approximately 60ft; lawn, outdoor tap; side access.
• 0.2 miles (approx) to Abbey Wood Station with Crossrail/Elizabeth Line & Thameslink
• 0.3 miles (approx) to Lesness Abbey Woods
• Council Tax: Band C
Copyright RE/MAX UK 2026. Privacy Policy | Cookie Policy | Complaints Procedure
Designed by Fast Generations