

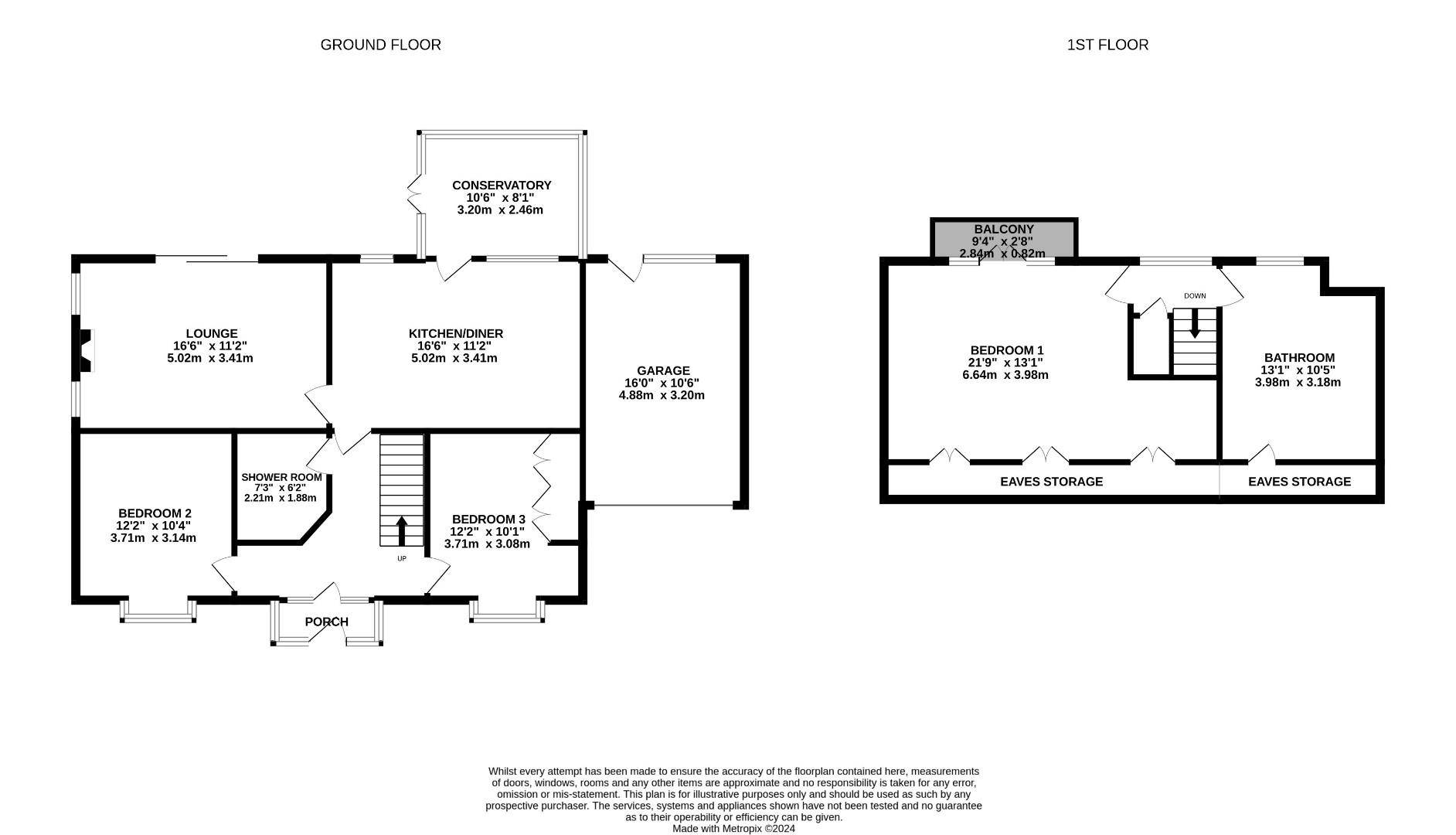
This well presented three bedroom detached home situated on a private generous size plot briefly comprises to the ground floor; Entrance porch, entrance hall, fitted kitchen dining room with space for table, spacious lounge with sliding doors to garden, modern fitted shower room, two bedrooms with bay windows to front and a conservatory with French doors to decked patio area.
To the first floor, landing with built in storage cupboard, master suite with substantial eaves storage and balcony with pleasant views and a good size fitted bathroom with again generous storage facilities.
The property benefits from having a low maintenance rear garden with wooden decking surrounding the rear, to the side a generous size corner plot with secure iron gates to front, a separate garage with ample storage space and from having off road parking for multiple cars to the front and additional parking behind gates for vehicles if needed.
To the front of the property there is a paved pathway leading to the porch, tarmacadam driveway to side providing parking, door leading to the garage and a gate to the side access leading to the garden.
With a door leading from the front, tiled flooring, double glazed windows to side and front and a door leading to the entrance hall.
With a door leading from the porch, doors leading to various rooms, stairs leading to the first floor landing with understairs storage and a central heating radiator.
Dimentions: 16'5" x 11'2"
With a door leading from the entrance hall, fitted with a range of wall and base units with tiled splash back, one and a half stainless steel sink and drainer, Integrated electric hob and oven with extractor hood, wine rack, space for appliances and dining room table, door leading to the lounge, stable door leading to conservatory, recessed spotlights, double glazed windows to rear and a central heating radiator.
Dimentions: 16'5" x 11'2"
With a door leading from the kitchen diner, double glazed windows to side, gas fire place with decorative surround and hearth, double glazed sliding door to rear leading to the garden decking area and a central heating radiator.
Dimentions: 10'5" x 8'0"
With a stable door leading from the kitchen diner, double glazed windows to side and rear and a double glazed French door to side leading to the garden.
Dimentions: 12'2" x 10'3"
With a door leading from the entrance hall, double glazed bay window to front and a central heating radiator.
Dimentions: 12'2" x 10'1"
With a door leading from the entrance hall, double glazed bay window to front and a central heating radiator.
With a door leading from the entrance hall, fully tiled surround, modern fit throughout, wash hand basin, WC, shower cubicle with waterfall attachment, extractor fan and a heated towel rail.
With stairs leading from the entrance hall, airing cupboard, doors leading to the master suite and bathroom, double glazed window to rear and a central heating radiator.
Dimentions: 21'9" x 13'0"
With a door leading from the landing, recessed spotlights, generous built in eaves storage, double glazed French doors to the balcony and a central heating radiator.
With doors leading from the master bedroom, space for table and chairs, iron railing surround and scenic views.
With a door leading from the landing, partly tiled surround, bath unit, WC, wash hand basin, door leading to storage in the eaves housing boiler, double glazed window to rear and a central heating radiator.
With doors leading from the conservatory and a lounge, decked area surround, generous size chipping stone area to side with iron gate to the front, further private decking area behind the garage with a side access and gate to the front and a door leading to the garage.
With a door leading from the garden, electric, ample storage space and an up and over door to front.
At RE/MAX Prime Estates, we adhere to the strict guidelines outlined in the MONEY LAUNDERING REGULATIONS 2017. As per legal requirements, we are obligated to verify the identity of all purchasers and the sources of their funds to facilitate a seamless purchase process. Therefore, all prospective purchasers must furnish the following documentation:
- Satisfactory photographic identification.
- Proof of address/residency.
- Verification of the source of purchase funds.
Please be advised that RE/MAX Prime Estates reserves the right to utilize electronic verification methods to authenticate any required documents. A nominal fee of £36 including VAT per person will be applicable for this service.
Rest assured that these measures are in place to ensure compliance with regulatory standards and to safeguard the integrity of all property transactions.
Copyright RE/MAX UK 2026. Privacy Policy | Cookie Policy | Complaints Procedure | ESG Policy
Designed by Fast Generations