

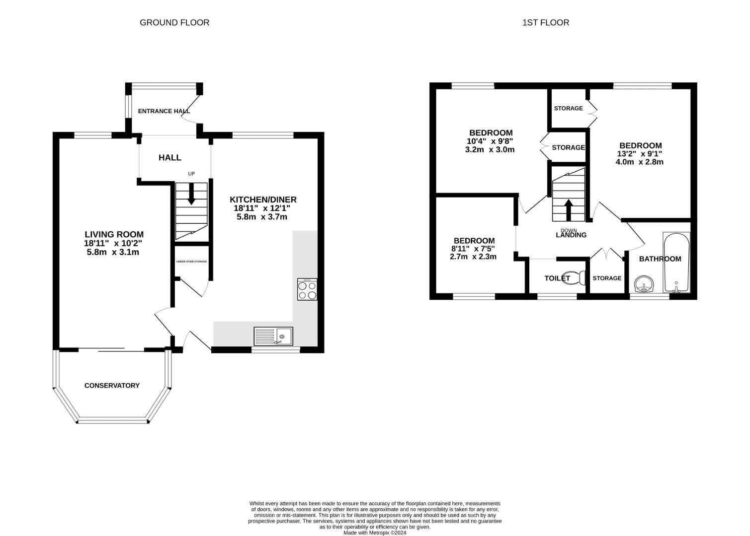
RE/MAX are delighted to offer this three bedroom end terrace house located close to local amenities and transport links.
The property comprises of a lounge, fitted kitchen with dining area, conservatory, three bedrooms with all having fitted wardrobes, family bathroom and a separate W.C.
The property also benefits from having an enclosed rear garden.
Please call or email to book in a viewing!
Copyright RE/MAX UK 2026. Privacy Policy | Cookie Policy | Complaints Procedure
Designed by Fast Generations