

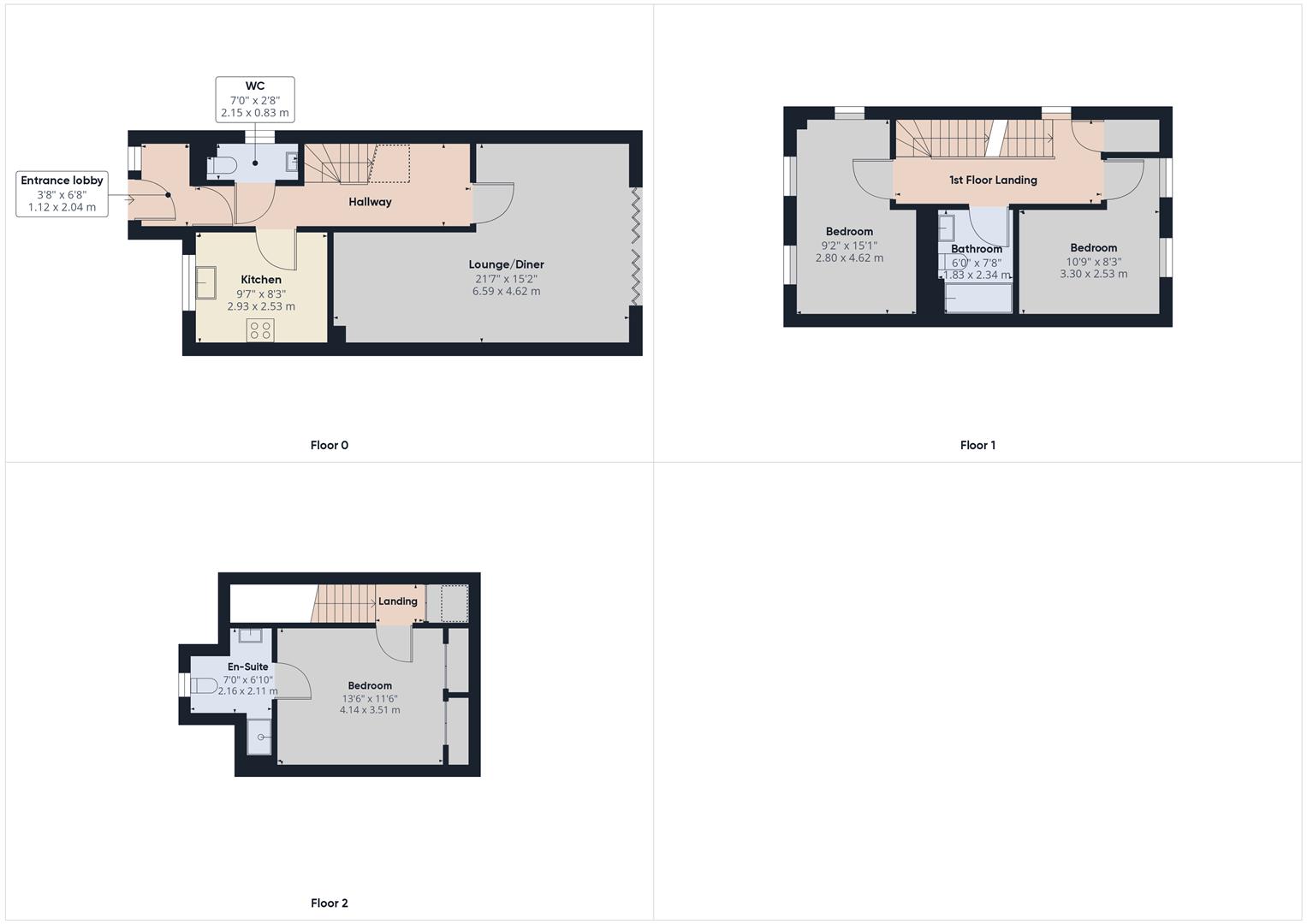
** MOVE-IN READY NOW ** A newly built spacious 3 bedroom end terrace home offering approx. 1,200 Sq.ft of space spanning across 3 floors, located on an exclusive mews development in the desirable Ramsey Village. Offering stylish family living with fully integrated kitchen, lounge/diner with bi-fold doors leading to the garden, ground floor cloakroom, on the first floor are 2 well sized bedrooms and a family bathroom, up to the 2nd floor and a further bedroom with en-suite bathroom
Set in the peaceful village of Ramsey, Old School Court is a collection of just 10 high specification family homes, these exceptional homes have been built to the highest standards, offering modern living space with a high end luxury feel and attention to detail, the development offers both 3 & 4 bedroom homes
The picturesque village of Ramsey, an area that has so much to offer due to it's beautiful surrounding countryside, perfect for walks and tranquility, but also nearby access to the A120 with links to the A12 to Colchester, Stansted Airport and London.
With historic Harwich in close proximity offering a delightful selection of bars and restaurants, shops, award winning beach and seafront and many other local amenities, Harwich Port is also close by allowing convenient travel to the Hook of Holland
Train Stations nearby include Wrabness, Dovercourt and Harwich all offering links to London Liverpool Street
Entrance Lobby & Entrance Hall
Ground Floor Cloakroom
Fully Integrated Kitchen
Lounge/Diner with Bi-folding Doors to Garden
First Floor Accommodation:
2 x Double Bedrooms
Family Bathroom
Second Floor Accommodation:
Large Double Bedroom with Velux Windows
En-Suite Bathroom with Bath & Shower Unit
VIEWINGS STRICTLY BY APPOINTMENT ONLY
Copyright RE/MAX UK 2026. Privacy Policy | Cookie Policy | Complaints Procedure
Designed by Fast Generations