

Well presented four bedroom detached house located on a quiet cul-de-sac in sought after Stoney Stanton.
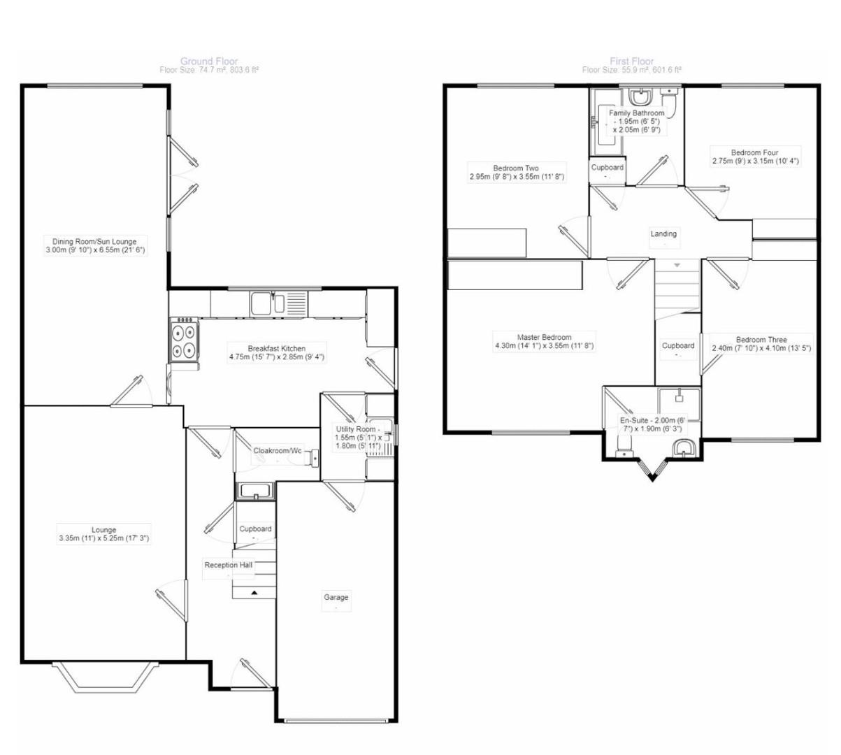
The accommodation briefly comprises of an entrance hallway, lounge, breakfast kitchen, dining room/sun lounge, utility room, four bedrooms with the master having an ensuite, family bathroom and a downstairs cloakroom/WC.
The property also benefits from having a garage, ample off road parking and a large well maintained rear garden overlooking open fields with gated side access.
Please call or email to book in a viewing!
Dimentions: 17'2" x 11'0"
Dimentions: 9'4" x 15'6"
Dimentions: 21'5" x 9'9"
Dimentions: 5'11" x 5'1"
Dimentions: 11'7" x 14'1"
Dimentions: 11'8" x 9'7"
Dimentions: 12'11" x 7'11"
Dimentions: 10'9" x 8'11"
Dimentions: 6'7" x 6'4"
Dimentions: 6'6" x 3'9"
Dimentions: 4'10" x 5'9"
Dimentions: 16'11" x 8'3"
Copyright RE/MAX UK 2026. Privacy Policy | Cookie Policy | Complaints Procedure | ESG Policy
Designed by Fast Generations